Tesla Plans To Build A Supercharger With A Drive-In Theater And A Restaurant In Hollywood
The theater/restaurant will have 29 space for Supercharging stations. If it gets built.
Some interesting Tesla Supercharger plans have leaked. Electrek reports, via a discovery made by the Twitter account for all things future Supercharger-related @MarcoRPTesla, that Tesla has plans to build a Supercharger with a restaurant and movie theater so drivers can eat or watch a film while their vehicles charge.
Originally, plans were in place to build a Supercharger with a diner in nearby Santa Monica. Back in 2018, Tesla had filed for permits in the city for such a place to be built. These plans fell through or something, as the location has now changed to Hollywood. The address for the permits and plans says 7001 Santa Monica Boulevard at the intersection of Orange Drive.


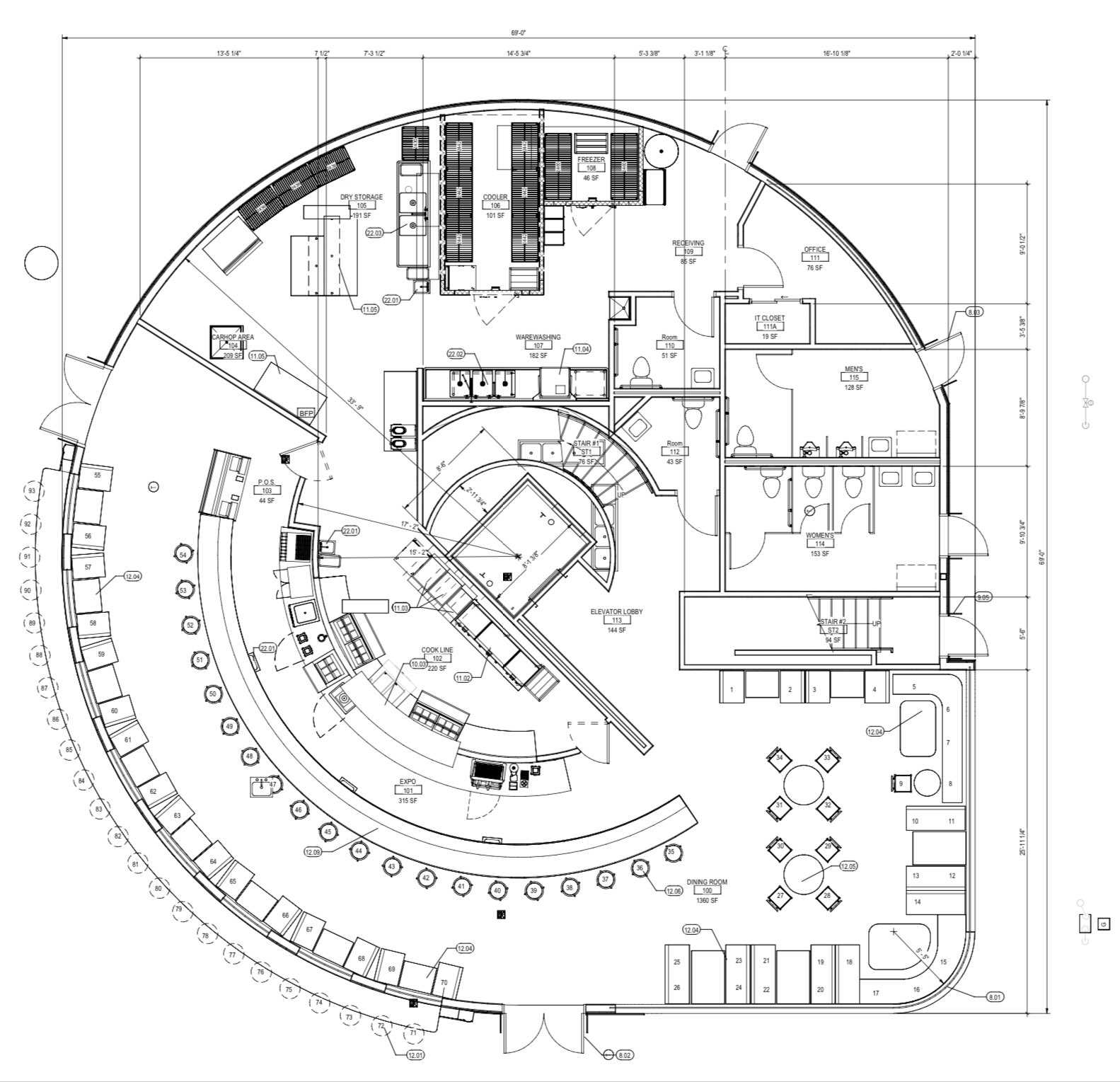
The plan calls for a two-story diner to be built where a Shakey's pizza parlor sits now. The diner has a typical setup with a bar, booths, an outdoor bar, and a car hop area where wait staff can bring food out to vehicles.

The second floor has a rooftop bar, rows of theater-style seating, and another standing bar behind those seats.

The parking lot, which is already large, will have 29 spots for Superchargers out of 34 total spots. The last five spots will be reserved for level 2 charging. The parking lot will be flanked by two large movie screens that can be seen by both people at the Superchargers and those at the rooftop bar.
This theater apparently won't be a movie theater in the typical sense. Since Superchargers tend to charge fast, shorts that are 30 minutes or less will be screened. And while hearing "drive-in theater and diner" may evoke visions of old school design, the property's overall seems to be going for some type of modern aesthetic with bamboo trees set on the north and west sides of the property.
There are a lot of unanswered questions here. Mainly: will Tesla be buying out the existing restaurant that's there so they can tear it down for the diner? How will Tesla handle the traffic situation? This is a busy street that crosses smaller, narrower streets. While it's an interesting concept to give people something to do while their cars get juice, this place is going to be a disaster for traffic in the area if it ever gets built.